| MLS # | 854010 |
| 더 많은 정보 | 침실3, 욕실2, 식기세척기, 세탁기, 에어컨, 주택 크기: 1400 ft2, 130m2 DOM: 322 일전 |
| 건축 년도 | 2025년 |
| 에어컨 | 중앙 에어 컨디셔닝 Central Air |
| 최하부 | 완성된 지하실 Full basement |
| 기차역 | Mastic Shirley 기차역 까지 2.6 마일 |
| Bellport 기차역 까지 4.3 마일 | |
![]() |
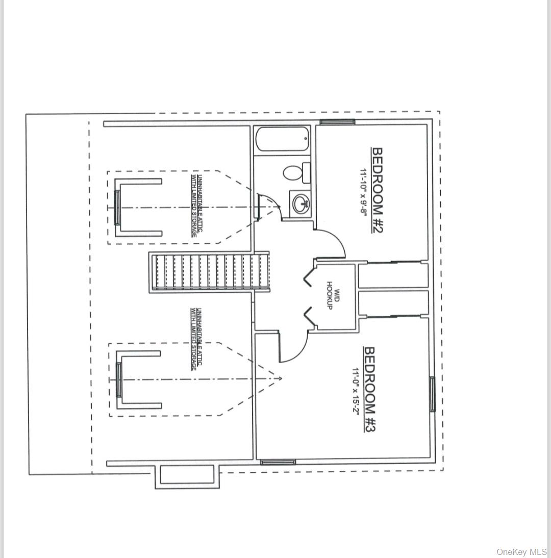
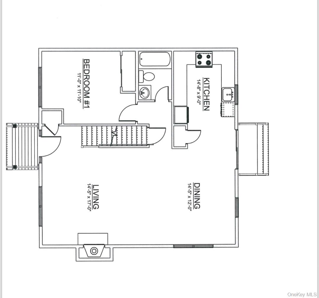
건설이 곧 시작됩니다!.... 새로 건설되는 집... 3침실 케이프 건축 예정/ 1층에 침실이 있고, 2층에는 침실이 2개 있습니다/ 화장실은 2개 있습니다... 1층에 하나... 2층에 하나/ 캐비닛 선택 가능/ 욕실 타일 선택 가능/ 주방용 화강암 선택 가능/ 침실용 카펫 선택 가능(모두 건축업체 선택에서 제공)/ 스테인리스 스틸 가전제품 패키지(건축업체 선택에서 제공)/ 히트 펌프/ 중앙 에어컨/ 8피트 천장으로 마감되지 않은 풀 베이스먼트와 하나의 출입구 창문, 크기가 2x3인 추가 창문 3개가 있습니다(표준 크기 베이스먼트 창문보다 큽니다)/ 베이스먼트 크기는 약 900 제곱피트입니다/ 건설이 곧 시작됩니다!!! 이전에 건축된 집의 사진! 집을 사용자 정의할 수 있습니다!! 모델 보기 위해 오프사이트 있습니다!!
Construction About To Start!....New Construction Home...To Be Built 3 Bedroom Cape/ There is a first floor bedroom and the Second floor has 2 bedrooms/There is 2 full bathrooms... One on the first floor...One on the second floor/You have a choice of cabinets/choice of tiles for the bathrooms/choice of granite for the Kitchen/choice of carpet for the bedrooms ( All from Builder's Selection) Stainless Steel Appliance Package( From Builder's Selection)/Heat Pump/Central Air Conditioning/Full Unfinished Basement with 8ft ceilings with One Egress Window plus 3 additional windows that are 2x3 in size ( they are larger then the standard size basement window) Basement size approximately 900 square feet/ Construction to begin soon!!! Photos of a previously built home! You Can Still Customize the Home!! Off site Model To View!!
( SPANISH )
Esta casa tipo cape de 3 dormitorios se construir/ La primera planta tiene un dormitorio y la segunda planta dos/ Hay dos ba;os completos... uno en la primera planta y otro en la segunda/ Puede elegir entre gabinetes/ azulejos para el bao/ granito para la cocina/alfombra para los dormitorios (todo a elecci;n del constructor) Paquete de electrodom&;sticos de acero inoxidable/bomba de calor/aire acondicionado central/s;tano completo sin terminar con techos de 8 pies con una ventana de salida m&;s 3 ventanas adicionales que son 2x3 en tama&;o (son m;s grandes que las ventanas de s;tano de tama;o est;ndar) El tama&;o del s&tano es de aproximadamente 900 pies cuadrados. La construcci;n comenzar; pronto!! Fotos de una casa ya construida...
This information is not verified for authenticity or accuracy and is not guaranteed and may not reflect all real estate activity in the market. Listing courtesy of Douglas Elliman Real Estate © 2026







