| ID # | RLS20065500 |
| 더 많은 정보 | 침실6, 욕실6, 반욕실1, 세탁기, 건조기, 주택 크기: 5250 ft2, 488m2, 빌딩: 2 유닛, 빌딩:5 층 DOM: 2 일전 |
| 건축 년도 | 1892년 |
| 부동산세 납부 | $21,504 |
| 지하철 | B, C 까지 도보 3 분 |
| 2, 3 까지 도보 7 분 | |
| A, D 까지 도보 9 분 | |
![]() |
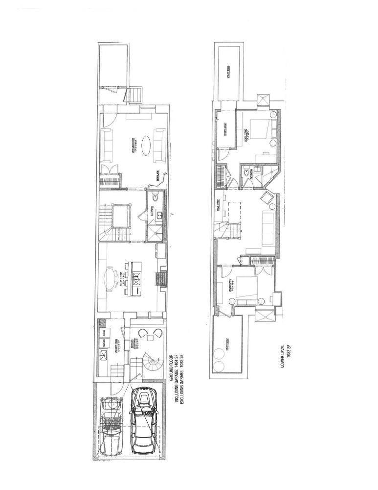
스트라이버스 로우에 위치한 이 집은 수상 경력이 있는 건축가 앨런 버먼이 설계한 21세기 생활에 필요한 모든 것을 갖춘 세심하게 복원 및 개조된 타운홈입니다. 269 웨스트 138번가에 위치한 이 집은 1892년에 개발자 데이비드 H. 킹에 의해 건축되었고, 건축가 브루스 프라이스와 클레어런스 루스가 식민지 부흥 양식으로 디자인했습니다. 이 집은 노란 벽돌과 석회석으로 지어졌습니다. 집의 면적은 약 5,250 제곱피트이며, 천장은 최고 10피트 8인치까지 높습니다. 다섯 개의 층은 원래의 역사적 디테일과 현대적 편안함을 잘 혼합하고 있습니다. 목재 장식은 흠잡을 데 없이 복원되었고, 집 전체의 참나무 바닥도 아름답게 복원되었습니다. 모든 몰딩과 석고 디테일도 완벽하게 복원되었습니다. 이 집은 수입을 창출할 수 있는 두 층의 아파트와 세 층의 소유자 트리플렉스로 구성된 다섯 개의 층을 가지고 있습니다. 이 개조는 집을 최소한의 작업과 비용으로 쉽게 단독 가족 주택으로 되돌릴 수 있는 방식으로 진행되었다는 점을 주목해야 합니다. 큰 장점은 집 뒤쪽에 차고가 있어 내부에서 계단으로 쉽게 접근이 가능하다는 점입니다. 즐길 수 있는 두 개의 테라스가 있으며, 하나는 응접실 층에 있어 손님을 접대하는 용도로 사용되고, 두 번째는 주 침실에서 나오는 테라스입니다.
응접실 층의 방들은 19세기 후반 에드워디안 디테일을 특징으로 하며, 거실, 정식 식당, 주방, 화장실 및 테라스를 포함합니다. 거실과 식당 모두 원래의 벽난로가 있으며, 타일 작업과 조각된 나무 몰딩이 아름답게 복원되어 좋은 작동 상태입니다. 화장실에는 황동 기구와 유럽 타일이 개별적으로 삽입되어 있습니다. 3층에는 욕실이 딸린 주 침실과 큰 드레스룸, 나무로 된 벽난로가 있습니다. 주 침실 옆에는 작은 테라스가 있습니다. 현재 사무실로 사용되고 있는 두 번째 큰 침실이 3층 앞쪽에 있으며, 이 역시 자체 욕실을 갖추고 있습니다. 4층에는 각각 독립 욕실이 있는 두 개의 큰 침실과 세탁실이 있습니다. 이곳에는 원래의 스카이라이트가 조심스럽게 복원되어 빛과 햇살이 집 안으로 흘러들어옵니다.
하층과 지상층은 아파트로 구성되어 있으며, 넓은 식사 가능 주방, 앞쪽에 벽난로가 있는 거실, 주방 옆의 세탁실 및 완전 욕실이 있습니다. 주방에는 연회용 식탁, 6구 스토브 및 더블 싱크대가 있습니다. 하층에는 취침용으로 사용되는 두 개의 덴과 완전 욕실, 기계장치가 있는 두 개의 유틸리티룸이 있습니다. 이 집은 네 개의 구역 난방 및 에어컨이 있으며, 각 방에 온도 조절 장치가 있습니다. 총 네 개의 나무 벽난로가 완벽하게 복원되고 다시 내부가 정비되어 정상 작동 상태입니다. 가전제품은 모든 것이 바이킹 브랜드이며, 세탁기와 건조기는 트리플렉스는 GE, 아파트는 일렉트롤룩스입니다. 두 주방의 조리대는 쿼츠입니다. 여섯 개의 욕실 각각은 바닥 난방이 구비되어 있어 겨울철에는 정말 고급스럽고, 음악과 TV를 위한 컨트롤 4 음향 시스템이 집 안에 설치되어 있으며, 모든 방에 스피커가 있습니다.
프레더릭 더글라스와 아담 클레이턴 파월 대로 사이에 위치한 스트라이버스 로우는 아주 길고 특별한 역사를 간직하고 있으며, 할렘 르네상스에서 매우 중요한 역할을 했습니다. 이곳은 국가 역사 등록부에 올라 있으며, 1967년에 뉴욕시 랜드마크로 지정되었고, 세인트 니콜라스 역사 지구에 위치하고 있습니다. 19세기 도시 설계의 뛰어난 예로 항상 평가받아왔습니다. 아담 클레이턴 파월 주니어, 빌 보젱글즈 로빈슨, 유비 블레이크, 플레처 헨더슨 그리고 최근의 앨빈 브래그 및 모리스 뒤부아 등 많은 유명하고 창의적이며 강력한 사람들이 이곳을 집으로 삼았습니다.
STRIVERS ROW meticulously restored and renovated town home with all the necessities for 21st century living by award winning architect Alan Berman of Archetype Architecture NY. This house at 269 West 138th Street was built in 1892 by developer David H. King and designed by architects Bruce Price and Clarence Luce in Colonial Revival Style. It is constructed of yellow brick and limestone. The house spans approximately 5,250 square feet with ceilings as high as 10'8". The five floors blend the original historic detail with contemporary comfort. The woodwork has been immaculately restored to its full beauty as were the oak floors throughout the house. All moldings and plaster detail were also perfectly restored. The house has five floors consisting of a two-floor apartment for income generation and a three floor owners triplex. It must be noted that this renovation was done in such a way that the house can very easily be brought back to single family with minimal work and expense. The big plus is there is a garage on the back of the house, easily reached from inside by a staircase. There are two terraces for enjoyment, one off the parlor floor for entertaining and the second off the primary bedroom.
The Parlor floor rooms feature Edwardian details of the late 19th century and include a living room, a formal dining room, kitchen, powder room and terrace. The living room and dining room both have the original fireplaces, in good working order with the tile work and carved wood mantels beautifully restored. The powder room has brass fixtures and European tiles individually inlaid. The third floor houses the master bedroom with en-suite bath and a large walk-in closet plus a woodburning fireplace. There is a small terrace off the primary bedroom. A second large bedroom, presently used as an office is at the front of the third floor and too has its own bath. The fourth floor houses two large bedrooms, each with its own full bath plus the laundry room. Here the original skylight, carefully restored allows light and sunshine to flow into the house.
The lower level and ground level make up the apartment which has a spacious eat-in kitchen, the living room in the front also with a fireplace, the laundry room off the kitchen and a full bath. The kitchen has a banquet, six burner stove and double sink. The lower level houses two dens used for sleeping, a full bath plus two utility rooms where the mechanics are found.
The house has four zone heating and air-conditioning with a temperature control in every room. In total there are four wood burning fireplaces, completely restored and relined, in perfect working order. Appliances are all Viking with the exception of the washers and dryers which are GE in the triplex and Electrolux in the apartment. The counters in both kitchens are Quartz. Each of the six bathrooms boasts heated floors, quite the luxury in the winter, and the house has a Control 4 sound system for music and TV with speakers in every room.
Located between Frederick Douglass and Adam Clayton Powell Boulevards Striver's Row has a very long and special history and played a very prominent role in the Harlem Renaissance. It is on the National Registry of Historic Places, was designated a New York City Landmark in 1967 and is in the St Nicholas Historic District. It has always been considered an outstanding example of 19th century urban design. Many famous, creative and powerful people have called this home, Adam Clayton Powell, Jr, Bill Bojangles"" Robinson, Eubie Blake, Fletcher Henerson and more recently Alvin Bragg and Maurice Dubois.
This information is not verified for authenticity or accuracy and is not guaranteed and may not reflect all real estate activity in the market. ©2025 The Real Estate Board of New York, Inc., All rights reserved.







