| ID # | RLS20066709 |
| 더 많은 정보 | 침실5, 욕실3, 반욕실2, 식기세척기, 세탁기, 건조기, 주택 크기: 4820 ft2, 448m2, 빌딩:3 층 DOM: 343 일전 |
| 건축 년도 | 1905년 |
| 부동산세 납부 | $12,192 |
| 버스 | B68 까지 도보 1 분 |
| B8 까지 도보 2 분 | |
| B11 까지 도보 6 분 | |
| B49, BM1, BM3, BM4 까지 도보 8 분 | |
| B6 까지 도보 9 분 | |
| 지하철 | B, Q 까지 도보 5 분 |
| 기차역 | Nostrand Avenue 기차역 까지 3.4 마일 |
| Atlantic Terminal 기차역 까지 3.6 마일 | |
![]() |
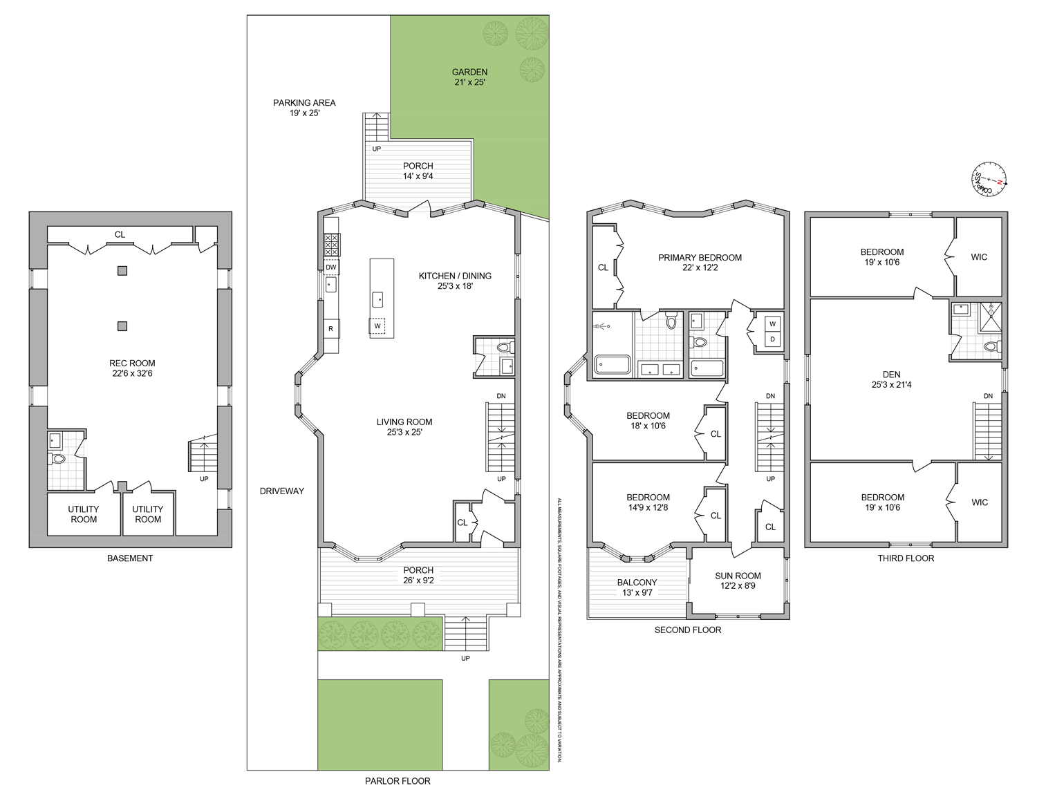
원래 1905년에 그림 같은 나무가 늘어선 거리의 디트마스 파크에 세워진 728 웨스트민스터 로드는 역사적 매력과 현대적 럭셔리를 완벽하게 결합하기 위해 세심하게 리노베이션되었습니다. 이 구별된 단독 주택은 5개의 침실, 3개의 완전한 욕실, 2개의 파우더 룸을 갖추고 있으며, 모두 고급 마감재, 원래의 디테일, 최첨단 기술로 보완되어 있습니다.
도착하시면 매력적인 전면 갑판이 여러분을 따뜻하게 맞이하며 넓은 1150평방피트의 파를로 floor, 넓은 거실과 중앙 식당 공간을 편리하게 수용하도록 설계되었습니다. 뒤쪽에는 섬, 맞춤형 캐비닛 및 우아한 쿼츠 카운터탑을 갖춘 고급 주방이 기다리고 있으며, 추가 편의를 위한 이중 싱크대도 마련되어 있습니다. 이 요리의 천국은 6구 화구와 냄비 채우기 기능이 있는 Thermador 스테인리스 스틸 고급 가전제품, 프렌치 도어 냉장고, 식기세척기 및 와인 냉장고로 장착되어 있습니다. 주방에서 야외 갑판으로 향하는 프렌치 도어가 있으며, 정원과 새로 포장된 주차 공간의 고요한 전망을 제공합니다. 이는 오락이나 휴식을 위한 완벽한 공간입니다.
2층에는 킹 사이즈 침대를 편안하게 수용할 수 있는 인상적인 주요 스위트 룸을 포함하여 generously 사이즈의 침실 3개가 있습니다. 이 스위트 룸은 바닥에서 천장까지의 옷장과 고급스러운 욕실이 있으며, 바닥 난방, 정교한 대리석 타일, 더블 세면대, 넓은 유리로 둘러싸인 샤워실, 그리고 최상의 휴식을 위한 독립형 욕조가 갖추어져 있습니다. 이 층 앞쪽에는 각각 편안한 공간을 제공하는 퀸 사이즈 침실 2개가 더 있습니다. 또한 이 층에는 바닥 난방과 샤워/욕조 조합이 있는 매력적인 두 번째 완전 욕실이 있습니다. 이 층을 완성하는 것은 발코니로 열리는 멋진 썬룸, 사무실 또는 플렉스 공간으로, 아래의 나무가 늘어선 거리의 그림 같은 전망을 제공합니다.
넓은 3층은 두 개의 generously 사이즈의 침실에 의해 경계를 이루는 다용도의 햇볕이 잘 드는 두 번째 거실을 제공합니다. 각 침실에는 대형 옷장이 구비되어 있으며, 넉넉한 저장 공간을 제공합니다. 이 층에는 바닥 난방과 세련된 유리로 둘러싸인 샤워가 있는 아름답게 꾸며진 욕실도 포함되어 있습니다.
아래층에는 타일로 마감된 넓은 완공된 지하실이 있으며, 여러 개의 창문이 있어 자연광이 들어오고, 넉넉한 옷장 공간과 또 하나의 반 욕실이 있어 놀이방, 레크리에이션 룸 또는 미디어 덴에 적합합니다.
디트마스 파크/미드우드의 고전적인 나무가 늘어선 거리의 한쪽에 자리 잡고 있는 이 마스터피스처럼 재구성된 타운하우스는 지역 레스토랑, 프로스펙트 파크 및 브루클린 대학교에 둘러싸여 있습니다. 주민들은 Milk & Honey Cafe, Lo Duca Pizza, The Castello Plan 및 Di Fara와 같은 유명한 외식 장소에서 단 몇 걸음 거리에 있습니다. 대중교통에 대한 편리한 접근은 B/Q 기차 및 B68/B8 버스를 포함합니다.
Originally constructed in 1905 on a picturesque, tree-lined block in Ditmas Park, 728 Westminster Rd has been meticulously renovated to seamlessly blend historic charm with modern luxury. This distinguished, detached single-family home features 5 bedrooms, 3 full bathrooms, and 2 powder rooms, all complemented by high-end finishes, original details, and state-of-the-art technology.
As you arrive, a charming front deck warmly welcomes you into the expansive 1150sf parlor floor, designed to accommodate a grand living room and a central dining area with ease. At the rear, a gourmet kitchen awaits, featuring an island, custom cabinetry, and elegant quartz countertops, along with dual sinks for added convenience. This culinary haven is outfitted with top-of-the-line Thermador stainless steel appliances, including a six-burner stove with a pot filler, a French door refrigerator, a dishwasher, and a wine refrigerator. French doors extend from the kitchen to an outdoor deck, offering serene views of the garden and the newly paved parking area, perfect for entertaining or relaxation.
The second floor unveils three generously sized bedrooms, including an impressive primary suite that comfortably accommodates a king-sized bed. This suite is enhanced by floor-to-ceiling closets and a lavish ensuite bath, featuring radiant floor heating, exquisite marble tile, a double vanity, a spacious glass-enclosed shower, and a freestanding soaking tub for ultimate relaxation. Towards the front of this floor, you will find two more queen-sized bedrooms, each offering ample space and comfort. Additionally, this floor offers a charming second full bathroom with radiant floor heating and a shower/tub combination. Completing this level is a stunning sunroom, office, or flex space that opens to a balcony, providing picturesque views of the tree-lined street below.
The expansive third floor offers a versatile, sun-drenched second living room, bordered by two generously sized bedrooms. Each bedroom is equipped with large closets, offering ample storage space. This floor also includes a beautifully appointed full bathroom, featuring radiant floor heating and a sleek glass-enclosed shower.
Downstairs, the spacious finished basement has tiled floors, several windows for natural light, ample closet space, and another half bathroom, and is ideal for a playroom, recreational room, or media den.
Nestled on a classic, tree-lined street in Ditmas Park/Midwood, this masterfully reimagined townhouse is surrounded by local dining hotspots, Prospect Park, and Brooklyn College. Residents are just moments away from acclaimed dining establishments such as Milk & Honey Cafe, Lo Duca Pizza, The Castello Plan, and Di Fara. Convenient access to public transportation includes the B/Q trains and B68/B8 buses.
This information is not verified for authenticity or accuracy and is not guaranteed and may not reflect all real estate activity in the market. ©2025 The Real Estate Board of New York, Inc., All rights reserved.







