| ID # | RLS20066942 |
| 더 많은 정보 | 침실2, 욕실1, 반욕실1, 세탁기, 건조기, 빌딩: 3 유닛, 빌딩:3 층 DOM: 1 일전 |
| 건축 년도 | 1906년 |
| 버스 | B44 까지 도보 1 분 |
| B45 까지 도보 2 분 | |
| B43 까지 도보 3 분 | |
| B44+, B65 까지 도보 4 분 | |
| B49 까지 도보 5 분 | |
| B48 까지 도보 9 분 | |
| B25 까지 도보 10 분 | |
| 지하철 | 3 까지 도보 5 분 |
| 2, 5 까지 도보 8 분 | |
| S 까지 도보 10 분 | |
| 기차역 | Nostrand Avenue 기차역 까지 0.4 마일 |
| Atlantic Terminal 기차역 까지 1.6 마일 | |
![]() |
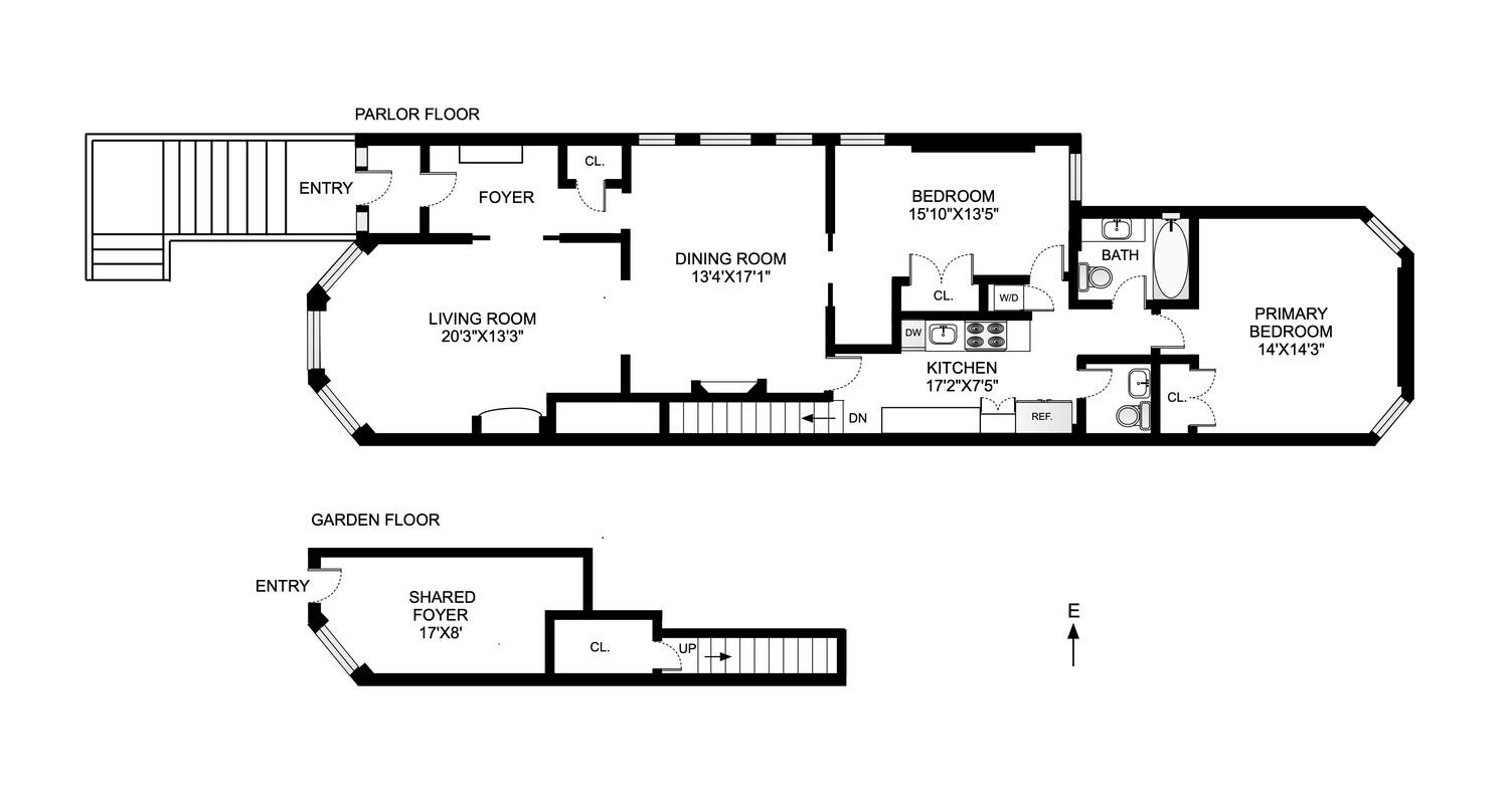
896 Park Place의 파를러 층에 오신 것을 환영합니다. 원래의 건축 세부 사항으로 풍부해진 1,300평방 피트의 두 개의 침실과 두 개의 욕실이 있는 주거지입니다.
우아한 배럴 프런트 타운하우스의 개별 현관 계단을 올라가면 피어 거울과 바닥에서 천장까지의 벽판이 있는 정교한 현관으로 들어갑니다. 원래의 포켓 도어를 지나면, 또 다른 아름다운 피어 거울과 넓은 베이 윈도우, 독특한 장식 석고가 돋보이는 매력적인 거실이 나타납니다. 원래의 장식 세공은 거실과 정식 식당 공간을 강조하여 이 두 공간을 매끄럽게 연결합니다. 이 큰 방은 코퍼드 천장, 원래의 맨틀, 방을 둘러싼 벽판, 스테인드 글라스 창문, 또 다른 원래의 포켓 도어 세트를 갖추고 있습니다. 주방은 최근에 개조되었으며 카라라 대리석 조리대와 백스플래시, 우아한 흰색 캐비닛, 스테인리스 스틸 가전제품(식기 세척기도 포함) 및 노출된 벽돌 장식이 갖춰져 있습니다. 두 개의 침실은 모두 넉넉한 공간, 여러 방향의 채광, 큰 더블 클로짓, 그리고 전반에 걸쳐 추가적인 원래 장식 세부 사항을 제공합니다. 욕실도 최근에 개조되어 대리석 조리대와 맞춤형 장식이 있습니다. 이 외에도 이 주거지는 이중 구역 중앙 에어컨 및 난방, 유닛 내부 세탁기/건조기, 별도의 현관에 지정된 유모차 주차 공간을 포함합니다.
896 Park Place에서 현대적 럭셔리의 혜택을 누리면서 역사적 매력을 발견해 보세요. 집의 원래 특징을 세심하게 보존한 것은 시대를 초월한 우아함을 가진 입주 가능 아파트에 살 수 있는 독특한 기회를 제공합니다. 그림 같은 파크 플레이스에 이상적으로 위치한 이 부동산은 대중교통과 이웃의 가장 소중한 레스토랑 및 카페와 가까운 거리에 있습니다. 프로스펙트 파크, 브루클린 박물관, 식물원 및 수많은 다른 브루클린 명소에 편리하게 접근할 수 있는 이 위치는 그 어떤 곳과도 비교할 수 없습니다.
1월 15일부터 이용 가능 - 세입자가 전기 요금을 지급합니다. 죄송하지만, 개는 허용되지 않습니다.
세입자가 지불하는 수수료:
각 지원자에 대해 20달러의 신용 및 배경 조사
6,950달러 보증금
Welcome to the parlor floor at 896 Park Place, a remarkable 1,300 sq ft two-bedroom, two-bathroom residence enriched with original architectural details.
Ascend the private front stoop of this elegant, barrel-front townhouse and enter your exquisite foyer, featuring a pier mirror and floor-to-ceiling wainscoting. Beyond the original pocket doors, you will encounter an inviting living room showcasing another gorgeous pier mirror, expansive bay windows, and unique ornamental plasterwork on the ceiling. The original fretwork accents both the living room and the formal dining area, seamlessly uniting these two spaces. This large room features coffered ceilings, an original mantel, wainscoting surrounding the room, stained-glass windows, and another set of original pocket doors. The kitchen has recently been renovated and is equipped with Carrara marble countertops and backsplash, elegant white cabinetry, stainless steel appliances-including a dishwasher-and exposed brick accents. Both bedrooms offer generous space, multiple exposures, large double closets, and additional original decorative details throughout. The bathrooms have also been recently renovated, featuring marble countertops and custom accents. In addition, this residence includes two-zone central air conditioning and heating, an in-unit washer/dryer, and designated stroller parking in a separate vestibule.
Discover historic charm while enjoying the benefits of contemporary luxury at 896 Park Place. The meticulous preservation of the home's original features offers a unique opportunity to live in a move-in-ready apartment with timeless elegance. Ideally situated on the picturesque Park Place, the property is in close proximity to transportation and some of the neighborhood's most cherished restaurants and cafés. With convenient access to Prospect Park, the Brooklyn Museum, the Botanic Gardens, and numerous other beloved Brooklyn attractions, this location is unparalleled.
Available January 15th - Tenant pays electric. Sorry, no dogs.
Fees Paid By The Tenant:
$20 credit and background check for each applicant
$6,950 security
This information is not verified for authenticity or accuracy and is not guaranteed and may not reflect all real estate activity in the market. ©2025 The Real Estate Board of New York, Inc., All rights reserved.






