| MLS # | 953441 |
| 더 많은 정보 | 침실4, 욕실2, 차고, 부지의 크기: 0.07에이커 , 주택 크기: 1456 ft2, 135m2 DOM: 46 일전 |
| 건축 년도 | 1920년 |
| 부동산세 납부 | $6,886 |
| 연료 | 천연 가스 Gas |
| 최하부 | 완성된 지하실 Full basement |
| 버스 | Q16, Q20A, Q20B, Q44 까지 도보 1 분 |
| Q34, QM20 까지 도보 3 분 | |
| QM2 까지 도보 4 분 | |
| Q25 까지 도보 5 분 | |
| Q50 까지 도보 6 분 | |
| Q13, Q28 까지 도보 7 분 | |
| QM3 까지 도보 8 분 | |
| 기차역 | Murray Hill 기차역 까지 0.8 마일 |
| Flushing Main Street 기차역 까지 0.8 마일 | |
![]() |
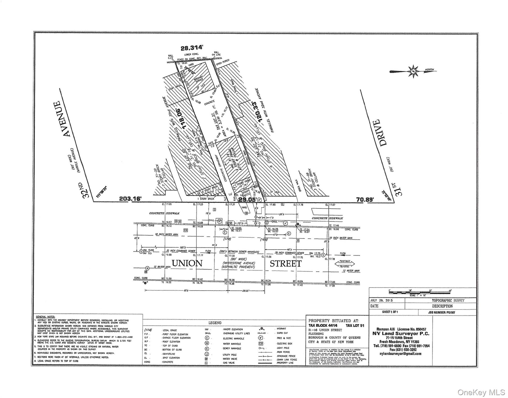
*** 플러싱 다운타운의 주요 개발 기회 *** 북 플러싱 중심부에 위치한 3,230 평방 피트 규모의 드문 R5D 구역 필지로, 기존의 다세대 주거 건물과 활기찬 거리 풍경에 둘러싸여 있습니다. 메인 스트리트, 7호선 지하철, 그리고 플러싱의 주요 쇼핑 및 식사 장소와 가까운 이 부동산은 콘도나 다가구 전략을 탐색하는 투자자와 개발자에게 뛰어난 위치, 규모, 구역 정렬을 제공합니다. 전략적 토지 매입으로 보유하든, 미래 프로젝트 부지로 추구하든, 이는 퀸즈에서 가장 역동적인 동네 중 하나에서 장기적인 상승 기회를 찾는 이들에게 이상적인 드문 발견입니다.
Read the English version or choose another language
This information is not verified for authenticity or accuracy and is not guaranteed and may not reflect all real estate activity in the market. Listing courtesy of RE/MAX 1st Choice © 2026







