| ID # | RLS20068294 |
| 더 많은 정보 | 건물: TRUMP PARC 0침실 STUDIO, 세탁기, 건조기, 주택 크기: 500 ft2, 46m2, 빌딩: 340 유닛, 빌딩:38 층 DOM: 1 일전 |
| 건축 년도 | 1930년 |
| 지하철 | F 까지 도보 3 분 |
| N, Q, R, W 까지 도보 4 분 | |
| A, B, C, D, 1, E 까지 도보 6 분 | |
| M 까지 도보 8 분 | |
![]() |
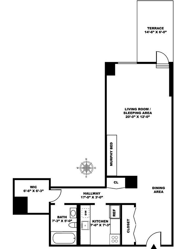
이 매력적인 약 500 평방피트 스튜디오는 맨해튼 중심부의 센트럴파크 바로 맞은편에 위치한 풀 서비스, 화이트 글러브 콘도미니엄에 있습니다. 이 스튜디오는 멋진 테라스를 자랑하며(전망은 없음), 충분한 벽장 공간과 패턴 메이플 바닥, 풀 사이즈의 독립 주방, 대리석 욕실을 포함한 조용한 생활 공간을 제공합니다. 이 property는 가구가 없는 상태 또는 가구가 완비된 상태로 제공될 수 있으며, 편리한 머피 침대 시스템이 함께 제공됩니다.
트럼프 박은 상시 도어맨, 컨시어지, 하우스키핑 및 드라이 클리닝 서비스가 포함된 내부 발레 서비스를 통해 최고의 서비스, 럭셔리 및 보안을 제공합니다. 또한 주차장도 있습니다. 세계에서 가장 유명한 부동산 지역 중 하나인 센트럴파크의 울창한 842에이커 바로 맞은편에 위치하여 뉴욕시의 믿을 수 없는 상점, 레스토랑, 호텔 및 오락 장소까지 단 몇 걸음 거리에 있습니다. 센트럴파크 사우스의 중심에 편리하게 위치하고 있습니다.
반려동물 금지 건물입니다.
임대와 관련된 수수료:
$1000 처리 수수료
$500 면제 수수료
아직 입주 중인 아파트입니다. 48시간 전에 미리 문의하여 보여 주시기 바랍니다.
This approximately 500 sq. ft. charming studio is located in a full-service, white-glove condominium directly across the street from Central Park in the heart of Manhattan. The studio boasts a nice terrace (though without a view) and offers a quiet living space with ample closet space, including pattern maple floors, a full-size separate kitchen, and a marble bath. This property can be offered either unfurnished or furnished, complete with a convenient Murphy bed system.
Trump Parc offers the ultimate in service, luxury and security with full time doormen, concierge, in house valet with Housekeeping and dry cleaning services. as well as a garage. Situated directly across the street from Central Park's lush 842 acres on one of the most famed strips of real estate in the world, you are just moments from New York City's most incredible shops, restaurants, hotels and entertainment venues.. Conveniently located in the center of Central Park South.
No-pet building.
Fees associated with Lease:
$1000 Processing Fee
$500 Waiver Fee
The apartment is still occupied, Please inquire a showing 48 hours advanced.
This information is not verified for authenticity or accuracy and is not guaranteed and may not reflect all real estate activity in the market. ©2025 The Real Estate Board of New York, Inc., All rights reserved.







