| MLS # | 964908 |
| 부동산세 납부 | $17,867 |
| 연료 | 전기 Electric |
| 난방 시스템 | 전기 Electric |
| 에어컨 | 중앙 에어 컨디셔닝 Central Air |
| 버스 | Q69 까지 도보 1 분 |
| Q100, Q104 까지 도보 3 분 | |
| Q18 까지 도보 5 분 | |
| Q102, Q103 까지 도보 6 분 | |
| Q19, Q66 까지 도보 9 분 | |
| 지하철 | N, W 까지 도보 9 분 |
| 기차역 | Hunterspoint Avenue 기차역 까지 1.9 마일 |
| Woodside 기차역 까지 2.1 마일 | |
![]() |
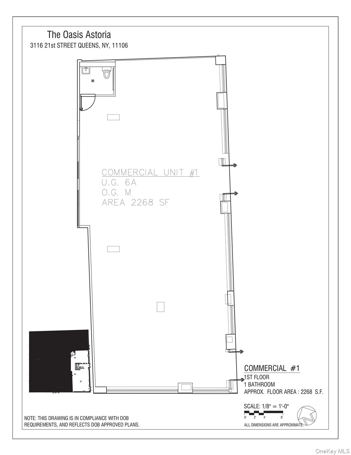
새로운 건축의 상업 소매 공간이 고급 부티크 건물 내에 있습니다. 31번가와 21번가의 활기찬 교차로에 위치하며, 현재 공사가 진행 중이며 2025년 1분기 완료 예정입니다. 이 2268 SF 코너 유닛은 최대 가시성을 가지고 프리미엄 점포를 원하는 비즈니스에 뛰어난 기회를 제공합니다. 이 유닛은 추가 편의성을 위해 자체 화장실이 갖춰져 있으며, 넓은 쇼윈도우와 높은 천장이 자연광을 극대화하고 고객에게 매력적인 분위기를 조성하도록 설계되었습니다. 이 소매 유닛은 다양한 사업을 위한 충분한 공간을 제공합니다. 이 지역의 교통량이 많아 귀하의 비즈니스는 잠재 고객에게 독보적인 노출의 혜택을 누릴 수 있습니다. 부티크, 카페 또는 갤러리 등 어떤 용도를 구상하시든 귀하의 비즈니스 요구를 수용할 수 있도록 모든 용도를 고려할 것입니다.
또한 S01 가게는 MLS: 803596을 참조할 수 있습니다.
Read the English version or choose another language
This information is not verified for authenticity or accuracy and is not guaranteed and may not reflect all real estate activity in the market. Listing courtesy of B Square Realty © 2026







