| ID # | 968665 |
| 더 많은 정보 | 침실2, 욕실2, 반욕실1, 식기세척기, 세탁기, 차고, 에어컨, 주택 크기: 3524 ft2, 327m2, 빌딩:3 층 DOM: 1 일전 |
| 건축 년도 | 2026년 |
| 관리비 | $400 |
| 부동산세 납부 | $11,720 |
| 연료 | 전기 Electric |
| 난방 시스템 | 뜨거운 공기 Hot air |
| 에어컨 | 중앙 에어 컨디셔닝 Central Air |
| 최하부 | 반지하 Partial |
| 차고 | 연결된 차고 (2 대 차고) Attached (2 car garage) |
![]() |
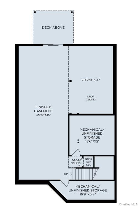
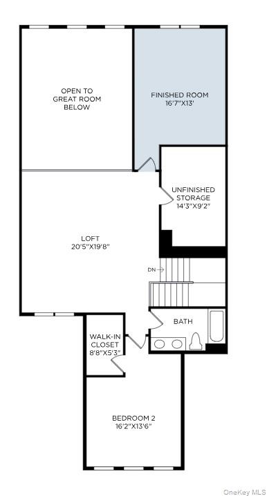
2026년 겨울 입주. 집이 지어질 예정입니다! 뉴욕의 그림처럼 아름다운 카멜 마을에 위치한 평화로운 55세 이상 커뮤니티 내에 있습니다. 호손 주택 디자인은 편안함과 기능성을 균형 있게 갖춘 배치를 제공합니다. 메인 층에는 대형 거실로 자연스럽게 이어지는 L자형 주방이 있어 손님을 맞기 완벽합니다. 이 층의 다용도 플렉스 룸은 추가적인 거주 공간을 제공합니다. 주 침실은 편리하게 메인 층에 위치하며, 이중 드레스룸과 이중 세면대가 있는 고급스러운 욕실, 그리고 개인 화장실을 자랑합니다. 2층에는 아늑한 쉼터 역할을 하는 로프트 공간이 있으며, 일상 출입구는 차고에서의 편리한 접근성을 보장합니다. 2층의 대형 거실은 개방감 있는 통풍이 잘 되는 분위기를 만들어냅니다. 메인 층의 주 침실은 이중 드레스룸과 스파 같은 욕실을 특징으로 합니다. 다용도 플렉스 룸과 2층 로프트는 적응 가능한 거주 공간을 제공합니다. 또한, 이 집은 완전한 욕실이 있는 완공된 지하로 나가는 출입구를 갖추고 있어 손님 맞이에 적합합니다! 저희 고급 디자인 스튜디오에서 내부 마감재를 개인화할 시간도 아직 있습니다. 이 집은 리조트 스타일의 편의 시설까지 도보 거리 내에 위치한 프리미엄 주택 부지에 있습니다.
Read the English version or choose another language
This information is not verified for authenticity or accuracy and is not guaranteed and may not reflect all real estate activity in the market. Listing courtesy of Toll Brothers Real Estate Inc. © 2026




