| ID # | 970602 |
| 더 많은 정보 | 침실3, 욕실1, 식기세척기, 세탁기, 차고, 부지의 크기: 1.5에이커 , 주택 크기: 1196 ft2, 111m2 DOM: 1 일전 |
| 건축 년도 | 1963년 |
| 최하부 | 완성된 지하실 Full basement |
| 차고 | 연결된 차고 Attached |
![]() |
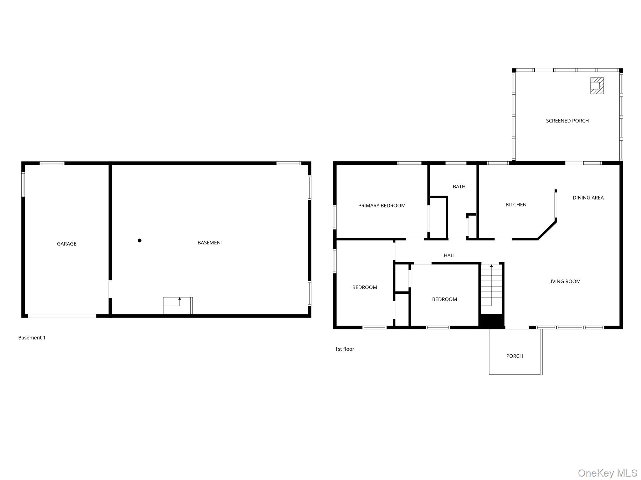
세련되게 개조된 랜치가 1.5에이커의 부지에 위치해 있으며, 밀브룩 마을에서 몇 분 거리에 아름다운 시골 길 위에 있습니다. 큰 파노라마 창을 통해 쏟아지는 자연광으로 가득한 아름답게 재마감된 원목 바닥. 새롭게 업데이트된 주방은 화이트 쉐이커 캐비닛, 화강암 조리대, 고급 비닐 플랭크 바닥, 스테인리스 스틸 가전제품을 자랑합니다. 개조된 욕실, 새로운 창문, 지붕, 사이딩, 보일러가 설치되어 있습니다. 주방 옆에 열선이 있는 실내 포치가 있으며, 멋진 정원으로 가는 계단이 있습니다. 1대 차량을 주차할 수 있는 차고, 넉넉한 주차 공간. 밀브룩 학군.
Tastefully renovated Ranch set on 1.5 acres sited on a lovely country road minutes from the Village of Millbrook. Beautifully refinished hardwood floors bathed in natural light streaming in through the large picture window. Newly updated kitchen boasts white Shaker cabinetry, granite counters, luxury vinyl plank flooring and stainless steel appliances. Renovated bathroom, new windows, roof, siding and boiler. Heated, enclosed porch off of the kitchen with stairs down to the fantastic yard. One car garage, plenty of parking. Millbrook schools.
This information is not verified for authenticity or accuracy and is not guaranteed and may not reflect all real estate activity in the market. Listing courtesy of Houlihan Lawrence Inc. © 2026






