| ID # | RLS20078871 |
| 더 많은 정보 | 건물: Bleecker Court 침실1, 욕실2, 빌딩: 242 유닛, 빌딩:14 층 DOM: 4 일전 |
| 건축 년도 | 1930년 |
| 관리비 | $3,199 |
| 지하철 | 6, B, D, F, M 까지 도보 2 분 |
| R, W 까지 도보 4 분 | |
| C, E 까지 도보 8 분 | |
| A, J, Z 까지 도보 9 분 | |
| 1 까지 도보 10 분 | |
![]() |
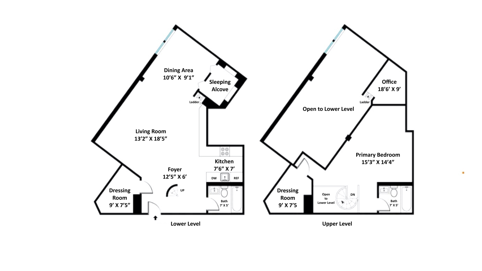
희귀하게 제공되며 세심하게 재구성된 Bleecker Court의 레지던스 320은 로프트 같은 규모, 유연한 다중 수면 레이아웃, 그리고 그리니치 빌리지에서 가장 선호되는 풀 서비스 협동조합 중 하나에서 최상급 리노베이션을 제공합니다. 오늘날의 역동적인 라이프스타일 요구를 수용하기 위해 설계된 이 독특한 주택은 여러 수면 공간, 전용 재택근무 공간, 그리고 아늑한 비율을 통해 다재다능함을 제공합니다.
넓은 거실과 식사 공간은 대형 창문에서 들어오는 자연광으로 가득 차 있으며, 일상 생활은 물론 편안한 접대를 위한 매력적인 환경을 조성합니다. 거실 공간 내에巧妙하게 통합된 수면 구역은 뛰어난 유연성을 더해 주며, 손님을 위한 공간이나 2차 수면 구역, 또는 조용한 휴식처로 이상적입니다.
별도의 홈 오피스 공간은 실용적이며 사적인 작업 공간을 제공하여 거주지의 생활-작업 기능성을 향상시킵니다. 넉넉한 기본 침실은 조용하게 위치해 있으며, 상당한 가구를 쉽게 수용할 수 있어 주택 내에서 편안하고 사적인 휴식처를 만들어냅니다.
최근에 개조된 주방은 Viking 레인지와 환풍 후드와 같은 프리미엄 가전으로 장착되어 현대적인 디자인과 뛰어난 기능성을 결합합니다. 욕실 또한 고급스러운 스파에서 영감을 받은 욕조와 별도의 욕조를 갖춘 아름답게 업데이트되었으며, 비교 가능한 빌리지 부동산에서는 드물게 발견되는 차분하고 주거적인 느낌을 제공합니다.
전반에 걸쳐 광범위한 수납공간이 포함되어 있으며, 공간의 조직과 사용성을 향상시키는 상당한 드레싱 공간이 있습니다. 거주 내 세탁기와 건조기 설치가 허용되며, 전기 연결이 이미 설치되어 있어 향후 소유자에게 편리한 홈 내 세탁 편의를 제공합니다.
Bleecker Court는 24시간 도어맨, 상주 관리자, 조경 처리된 옥상 데크, 중앙 세탁소, 자전거 보관 및 주차장 접근을 제공하는 잘 구축된 풀 서비스 협동조합입니다. 워싱턴 스퀘어 공원, 여러 지하철 노선, 그리고 그리니치 빌리지의 활기찬 음식 및 쇼핑 명소와 가까운 이상적인 위치에 자리잡고 있어, 이 레지던스는 프리미어 다운타운 위치에서 리노베이션된 유연하고 매우 살기 좋은 주택 소유의 독특한 기회를 제공합니다.
구매자 - 작업 기여금 (종료 시 필요) 환불 불가:
구매 가격의 3%
허용된 최대 금융:
고정 금리 모기지의 경우: 80% 금융 허용;
변동 금리 모기지의 경우: 70% 금융 허용
Rarely available and thoughtfully reimagined, Residence 320 at Bleecker Court offers loft-like scale, a flexible multi-sleeping layout, and a top of the line renovation in one of Greenwich Village's most sought-after full-service cooperatives. Designed to accommodate today's dynamic lifestyle needs, this distinctive home provides the versatility of multiple sleeping areas, dedicated work-from-home space, and generous proportions throughout.
The expansive living and dining area is bathed in natural light from oversized windows and creates an inviting environment for both everyday living and effortless entertaining. A cleverly integrated sleeping nook within the living space adds exceptional flexibility - ideal for guests, a secondary sleeping zone, or a quiet lounge retreat.
A separate home office area offers a practical and private workspace, enhancing the residence's live-work functionality. The oversized primary bedroom is quietly positioned and easily accommodates substantial furnishings, creating a comfortable and private retreat within the home.
The recently renovated kitchen is equipped with premium appliances including a Viking range and vented hood, combining modern design with excellent functionality. Bathrooms have also been tastefully updated, including a beautifully appointed spa-inspired bath featuring a glass-enclosed shower and separate soaking tub that provides a calming, residential feel rarely found in comparable Village properties.
Extensive storage throughout includes a substantial dressing area that enhances organization and usability. Washer and dryer installation is permitted within the residence, and electrical hookup is already in place, offering future owners the opportunity for seamless in-home laundry convenience.
Bleecker Court is a well-established full-service cooperative offering a 24-hour doorman, live-in superintendent, landscaped roof deck, central laundry, bike storage, and garage access. Ideally situated moments from Washington Square Park, multiple subway lines, and the vibrant dining and shopping destinations that define Greenwich Village living, this residence represents a unique opportunity to own a renovated, flexible, and highly livable home in a premier downtown location.
Buyer - Working Contribution (required at closing) Non-refundable:
3% of purchase price
Maximum Financing Permitted:
For fixed rate mortgages: 80% financing permitted;
For adjustable rate mortgages: 70% financing allowed
This information is not verified for authenticity or accuracy and is not guaranteed and may not reflect all real estate activity in the market. © 2026 The Real Estate Board of New York, Inc., All rights reserved.







