| ID # | 977730 |
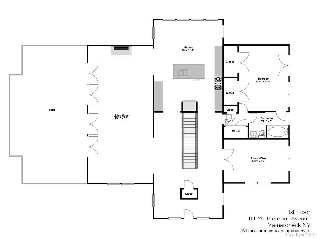
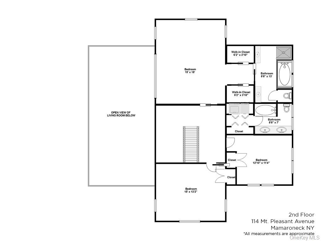
| 더 많은 정보 | 침실4, 욕실3, 식기세척기, 세탁기, 건조기, 차고, 에어컨, 부지의 크기: 0.43에이커 , 주택 크기: 2976 ft2, 276m2 DOM: 0 일전 |
| 건축 년도 | 2006년 |
| 연료 | 천연 가스 Gas |
| 에어컨 | 중앙 에어 컨디셔닝 Central Air |
| 최하부 | 반지하 Partial |
![]() |
도심 보물! 햇빛으로 가득한 세련된 모던 스타일과 넓은 정원/마당, 항구 전망, 마을, 기차, 해변까지 쉽게 걸어갈 수 있습니다. 거실의 벽면을 가득 채운 창, 높은 천장, 벽난로와 오픈형 주방/가족룸을 사랑하게 될 것입니다. 스카이라이트와 크고 잘 배치된 창문이 집의 모든 모서리로 아름다운 빛을 들어옵니다. 태양광 패널로 공공 요금이 낮게 유지됩니다. 항구 수변 전망의 넓은 뒷마당. 건축과 구조는 정말 뛰어나며 꼭 봐야 할 곳입니다.
In-Town Treasure! Striking sunlit rustic modern with huge level garden/yard, harbor views, and easy walk to village, train, and beach. Love the wall of windows, soaring ceiling, and fireplace of the LR and the open kitchen/family room. Skylights and large, well-placed windows draw beautiful light into every corner of the dwelling. Solar panels keep utility costs low. Big Backyard with harbor water views. The architecture and layout are truly superb, a must-see.
This information is not verified for authenticity or accuracy and is not guaranteed and may not reflect all real estate activity in the market. Listing courtesy of Stetson Real Estate © 2026







