| ID # | RLS20067058 |
| 더 많은 정보 | 침실6, 욕실7, 반욕실2, 주택 크기: 9104 ft2, 846m2, 빌딩: 2 유닛, 빌딩:5 층 DOM: 1 일전 |
| 건축 년도 | 1920년 |
| 부동산세 납부 | $119,964 |
| 지하철 | F, Q 까지 도보 2 분 |
| 6 까지 도보 4 분 | |
| N, W, R, 4, 5 까지 도보 5 분 | |
![]() |
*완전 승인된 준비 완료 석회석 타운하우스 - 파크 애비뉴 인근*
105 East 64th Street는 최종 사용자나 개발자가 세계적 수준의 석회석 단독 타운하우스를 만들 수 있는 완전 승인된 준비 완료 재개발 기회입니다. 파크 애비뉴에서 한 블록 떨어진 우아한 나무가 늘어선 도로에 위치한 이 주택은 어퍼 이스트 사이드에서 가장 바람직한 이웃 중 하나에 자리 잡고 있습니다.
현재 계획(문화유산, DOB, 구조, 기계, 배관, 스프링클러, 건축 및 기초 공사 포함)의 모든 승인이 완료되었으며, 새로운 수돗물 서비스, 배수 및 하수 연결이 마련되어 있고, 전기 및 가스 서비스는 ConEd에 등록되었습니다. 외부 보호가 현재 설치되어 있으며, 클로징 후 효율적인 동원 지원을 위해 준비되어 있습니다.
제안된 건물은 7개 층에 걸쳐 9,100 평방 피트 이상의 총 면적을 차지할 것입니다. 승인된 계획은 세련된 건축과 현대적 기능을 결합한 6개의 침실과 7개의 욕실, 2개의 반욕실 갖춘 단독 주택을 구상하고 있습니다. 맞춤형 상업용 엘리베이터, 다층 특징 계단, 통합된 서비스와 저장 공간이 있어 사교 및 일상 생활에 우수한 흐름을 제공합니다.
승인된 계획은 30피트 깊이의 후원, 사유 전정, 5층과 6층에 걸친 여러 개인 테라스, 야외 주방과 물 기능이 있는 조경이 잘된 옥상 휴양 공간을 포함하여 1,500 평방 피트 이상의 개인 야외 공간도 포함되어 있습니다. 레이아웃은 7개 층에 걸쳐서 웅장한 연회 공간과 아담한 개인 공간의 균형을 이루고 있습니다.
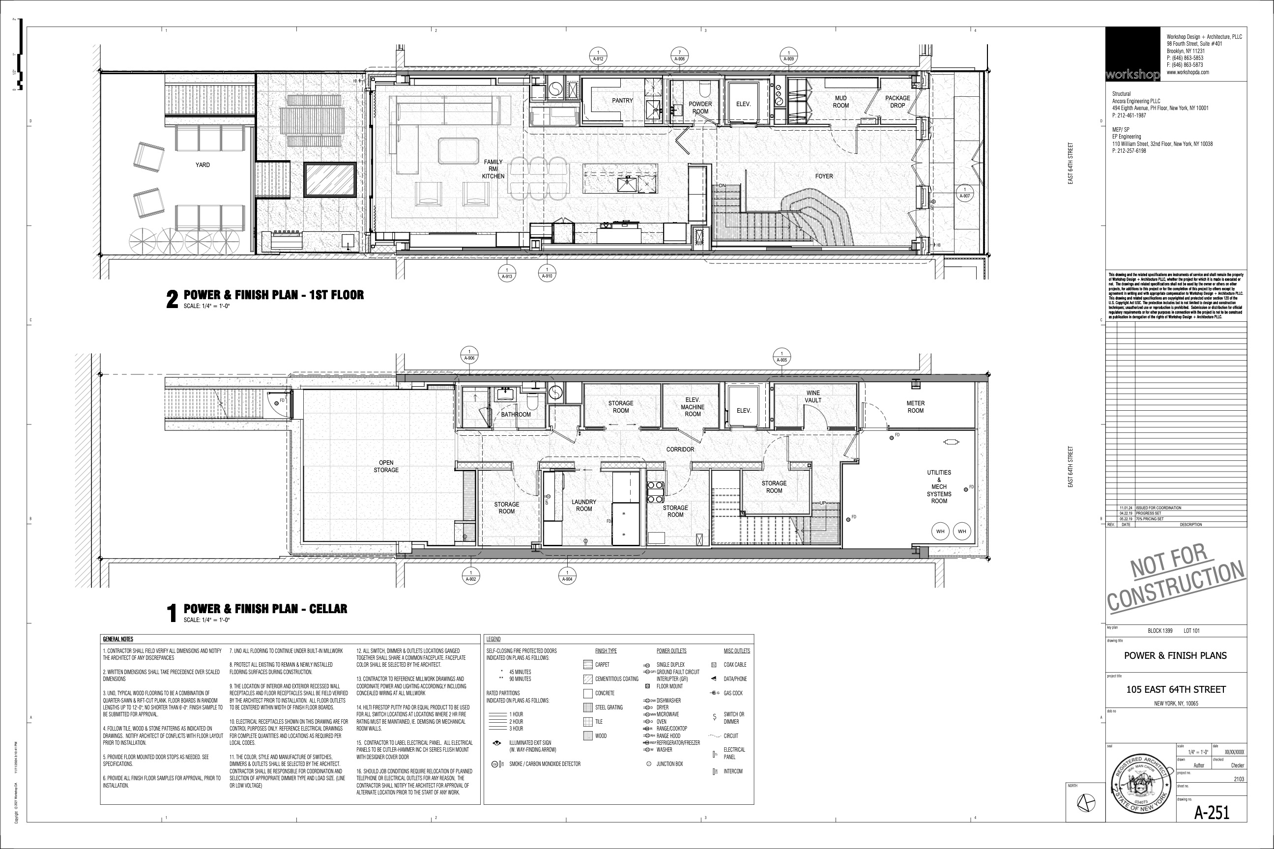
- 하층: 완벽하게 장비된 체육관, 온도 조절 와인 셀러, 전체 욕실, 전담 직원 세탁실 및 린넨 저장실, 저장실, 후원에 직접 접근할 수 있는 웰빙 및 레크리에이션 층.
- 파롤 층: 패키지룸 및 진흙 방이 있는 우아한 현관이 조용한 화장실, 팬트리와 웻바가 있는 고급 주방, 후원으로 직접 연결되는 오픈 개념 가족실로 이어집니다.
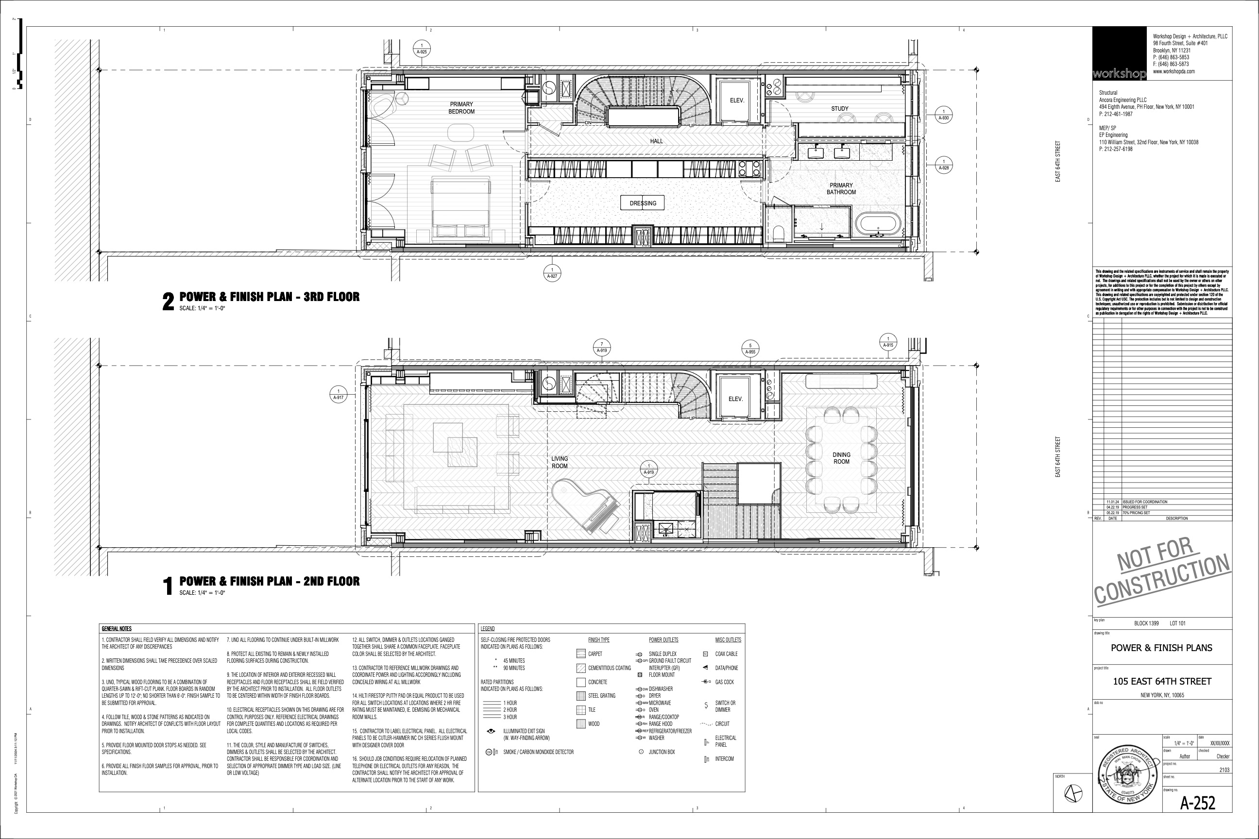
- 2층: 정식 식당과 드로잉룸, 세련된 연회를 위한 보조 팬트리와 바가 있습니다.
- 3층: 넓은 침실, 개인 서재, 스파 같은 욕실, 넓은 드레싱룸이 있는 전층 주인 마스터 스위트.
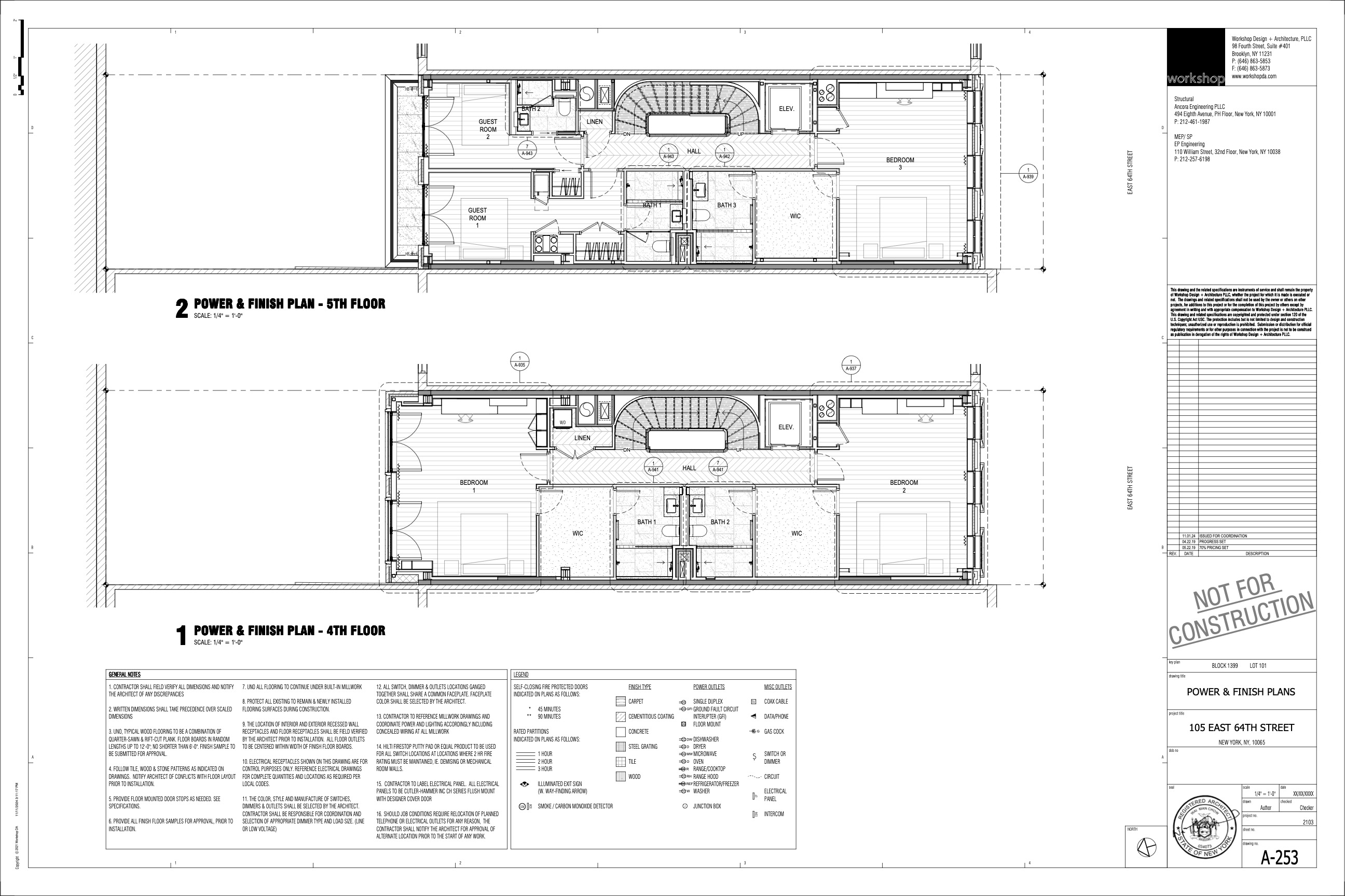
- 4층 및 5층: 각각 전용 욕실, 드레스룸이 있는 2차 및 게스트 스위트, 5층 개인 테라스 접근 가능.
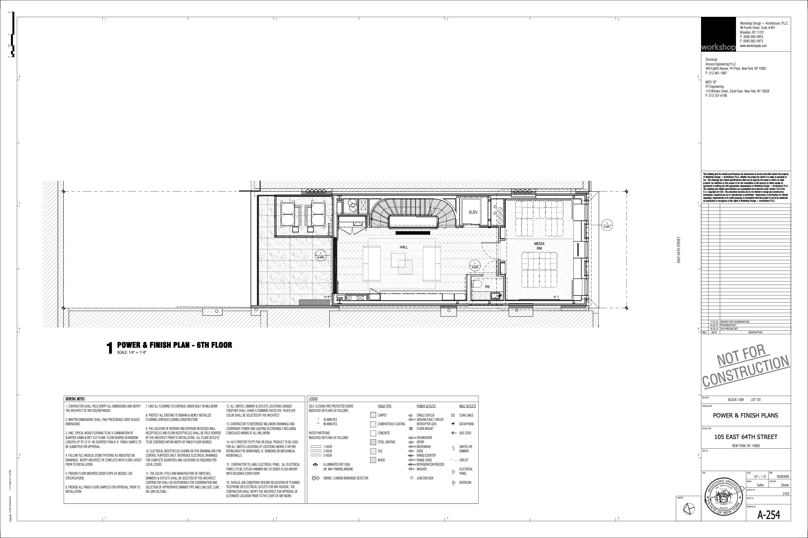
- 6층: 웻 바, 화장실, 후원을 내려다보는 테라스가 있는 라운지 및 홈 극장.
- 옥상: 야외 주방, 물 기능 및 스카이라인 전망이 있는 조경 테라스.
조명, 기후, 윈도우 처리, 보안, AV 및 관개를 통합하는 중앙 집중식 관리 시스템을 위한 스마트 홈 인프라로 설계되었습니다. 다중 영역 HVAC, 복사식 바닥 난방 및 습기 조절이 연중 내내 편안함을 보장하며, 설계 준비가 완료된 기계적 프레임워크에 의해 지원됩니다.
건축 디자인 세부사항으로는 석회석 외장, 고성능 강철 창문, 레인진크 큰 지붕이 있으며, 후측면 및 측면에 밀집한 찰과 석회석 클래딩이 있습니다. 손으로 깔린 석재 포장이 앞마당과 뒷마당을 더욱 향상시킬 것입니다. 예상 건설 기간은 약 16개월에서 20개월입니다.
부동산 하이라이트:
- 대지: 20'-10" × 100'-5" (약 2,092 SF)
- 승인 면적: 9,104 GSF (기존 7,570 GSF)
- 구성: 6개 침실 | 7개 욕실 | 2개 반욕실
- 야외 공간: 후원, 5층 및 6층의 테라스, 완비된 옥상 주방 및 물 기능
- 스마트 빌딩 시스템: 다중 영역 HVAC, 복사식 바닥, 습도 조절
- 승인 내용: 문화유산, DOB, 구조, 기계, 배관 및 전기
완전한 조달 패키지는 요청 시 제공됩니다.
*Fully Approved, Shovel-Ready Limestone Townhouse Off Park Avenue*
105 East 64th Street is a fully approved, shovel-ready redevelopment opportunity for end users or developers to create a world-class, limestone single-family townhouse. Situated on a distinguished tree-lined block just off Park Avenue, this home is located in one of the Upper East Side’s most coveted neighborhoods.
All approvals for the current plans (including Landmarks, DOB, structural, mechanical, plumbing, sprinkler, architectural, and foundation work) have been obtained, with new water service, storm and sewer connections in place, and electric and gas services filed with ConEd. Exterior protection is currently installed, supporting efficient mobilization following closing.
The proposed building would span over 9,100 gross square feet across seven beautifully proportioned levels. The approved plans envision a six-bedroom, seven-bathroom, two-half-bathroom single-family home that combines timeless architecture with modern functionality. A custom commercial-grade elevator, multi-story feature stairwell, and integrated service and storage areas provide exceptional flow for both entertaining and everyday living
The approved plans also include over 1,500 square feet of private outdoor space, encompassing a 30-foot-deep rear garden, a deeded front yard, multiple private terraces across the fifth and sixth levels, and a landscaped rooftop retreat with an outdoor kitchen and water feature. The layout balances grand entertaining spaces with intimate private quarters across its seven proposed floors.
- Lower Level: Wellness and recreation floor featuring a fully equipped gym, a temperature-controlled wine cellar, a full bathroom, dedicated staff laundry and linen storage, storage rooms, and direct access to the rear garden.
- Parlor Level: Elegant entry foyer with package room and mudroom leads to a discreet powder room, gourmet kitchen with pantry and wet bar, and an open-concept family room opening directly to the rear garden.
-Second Floor: Formal dining room and drawing room with a secondary pantry and bar for refined entertaining.
- Third Floor: Full-floor primary suite with a grand bedroom, private study, spa-like bathroom, and expansive dressing room.
- Fourth & Fifth Floors: Secondary and guest suites, each with ensuite baths, walk-in closets, and access to private terraces on the fifth floor.
- Sixth Floor: Lounge and home theatre with wet bar, powder room, and terrace overlooking the rear garden.
- Rooftop: Landscaped terrace featuring an outdoor kitchen, water feature, and skyline views.
Designed with smart-home infrastructure for a centralized management system integrating lighting, climate, window treatments, security, AV, and irrigation. Multi-zone HVAC, radiant-floor heating, and humidity control ensure year-round comfort, supported by a fully engineered and approved mechanical framework that is design-ready for implementation.
Architectural design details include a limestone façade, high-performance steel windows, and a Rheinzink mansard roof, with masonry and limestone cladding along the rear and sides. Hand-laid stone paving would enhance the front and rear gardens. The projected build timeline is approximately 16 to 20 months.
Property Highlights:
- Lot: 20'-10" × 100'-5" (approx. 2,092 SF)
- Approved for: 9,104 GSF (existing 7,570 GSF)
- Configuration: 6 Bedrooms | 7 Full Bathrooms | 2 Half Bathrooms
- Outdoor: Rear yard, terraces on the 5th & 6th floors, full rooftop kitchen & water feature
- Smart Building Systems: Multi-zone HVAC, radiant floors, humidity control
- Approvals: Landmarks, DOB, structural, mechanical, plumbing, and electrical
A complete procurement package is available by request.
This information is not verified for authenticity or accuracy and is not guaranteed and may not reflect all real estate activity in the market. ©2025 The Real Estate Board of New York, Inc., All rights reserved.







