| ID # | RLS20067291 |
| 더 많은 정보 | 침실3, 욕실1, 빌딩: 40 유닛, 빌딩:8 층 DOM: 0 일전 |
| 건축 년도 | 1910년 |
| 관리비 | $981 |
| 지하철 | 1 까지 도보 2 분 |
| C 까지 도보 4 분 | |
| B, D 까지 도보 7 분 | |
![]() |
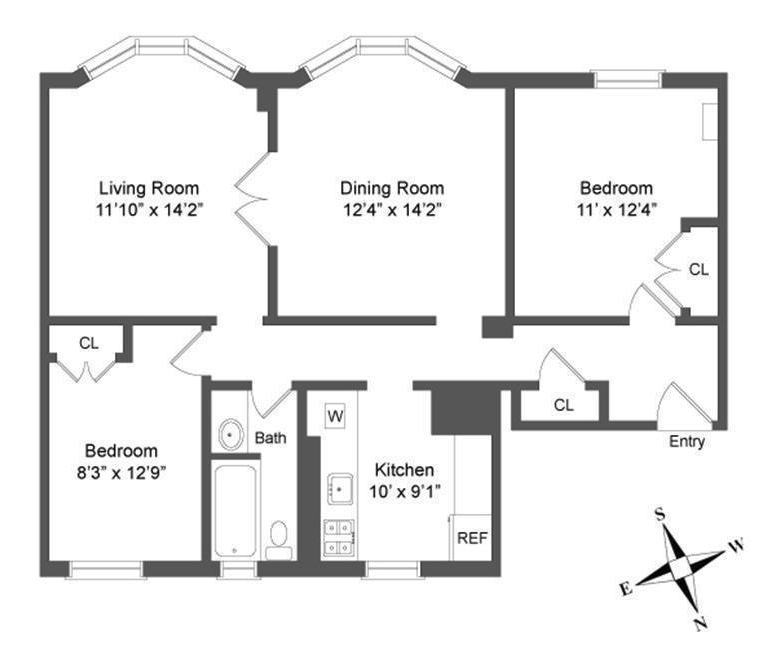
꿈의 집을 설계하세요. 이 넓은 두 개의 침실과 정식 식당이 있는 거주지인 대형 세 개의 침실을 제공하는 매력적인 오래된 시대의 HDFC 건물은 고소득 한도에 해당하는 유지 관리가 잘 된 건물입니다. 활기찬 워싱턴 하이츠 한가운데에 위치해 있습니다! 이 두 개의 침실은 넓고 유연한 평면 구조를 제공하며, 입구와 옷장으로 이어지는 넉넉한 거실은 큰 베이 윈도우가 있어 많은 햇빛을 받습니다. 현재 거실/식당은 프랑스어 문으로 분리되어 있지만 제3의 침실을 만들기 위해 분리될 수 있습니다. 창문이 있는 주방은 거실 맞은편에 위치해 있습니다. 분리된 침실은 개인적인 공간이 충분하고, 내부 복도가 침실과 공용 공간을 연결합니다. 다른 특징으로는 전체에 걸쳐 원래의 크라운 몰딩 장식과 높은 천장이 있습니다. 이 아파트는 엘리베이터 건물의 4층에 위치해 있습니다.
건물은 아름다운 외관과 대리석으로 된 웅장한 입구를 자랑하며, 이중 보안 출입구와 택배 및 손님을 위한 비디오 인터폰이 있습니다. 또한 로비에는 패키지를 위한 아마존 사물함이 있습니다. 건물의 하층에 공동 세탁실이 있으며, 상업용 사이즈 세탁기와 건조기로 최근에 개조되었습니다. 자전거 보관소와 추가 저장 공간도 임대 가능하고 있습니다. 건물은 고속 인터넷과 케이블 패키지를 할인된 가격으로 제공합니다. 소득 한도에 대한 자세한 내용은 이메일로 문의해 주세요.
544 West 157th Street는 브로드웨이와 암스테르담 사이에 편리하게 위치해 있으며, 1호선 기차에서 1분 거리에 있습니다. C호선 기차는 3개 블록 떨어져 있습니다. 근처에는 여러 개의 버스 노선이 있습니다. 아파트에서 3블록 이내에 두 개의 주요 식료품점이 위치하고 있으며, 건물 바로 건너편의 West 157th에 하나가 있습니다. 이 지역은 녹색 공원, 커피숍 및 진정한 레스토랑으로 가득 차 있으며, 특히 건물 바로 옆에 새로 개점한 트렌디한 레스토랑인 Wonder가 있어 다수의 수상 경력 있는 레스토랑을 한 곳에서 제공합니다!
개인적인 투어를 원하시면 이메일로 문의해 주세요.
Design your dream home in this massive convertible three bedroom or oversized two bedroom with formal dining room located in a well maintained and charming prewar elevator HDFC building with high income cap in the heart of vibrant Washington Heights! This two bedroom home offers a spacious and flexible floor plan with an entryway and coat closet leading into a generous living room with oversized bay windows allowing for plenty of sunlight. Currently the living / dining is separated by French doors, but can be separated to create a third bedroom. The windowed kitchen is located opposite the living room. The split bedrooms offer plenty of privacy with an interior hallway connecting the bedrooms to the common rooms. Other features include original crown molding detail throughout and high ceilings. This apartment is located on the 4th floor of an elevator building.
The building features a gorgeous façade and grand marble entryway with a double secure vestibule and video intercom for your deliveries and guests. Additionally. there are Amazon lockers in the lobby for packages. There is a common laundry room on the lower level of the building which was recently renovated with commercial sized washers and dryers as well as bicycle storage and additional storage available for rent. The building offers a high-speed internet and cable package at a discounted rate. Please email for details on income cap.
544 West 157th Street is conveniently located between Broadway and Amsterdam, 1 minute from the 1 train. The C train is 3 short blocks. There are multiple bus lines nearby. There are two major grocery stores located within 3 blocks of the apartment and one located directly across the street from the building on West 157th. The neighborhood is full of green parks, coffee shops and authentic restaurants nearby including newly opened trending restaurants such Wonder directly adjacent to the building - offering multiple award winning restaurants in one!
Please email for private showing.
This information is not verified for authenticity or accuracy and is not guaranteed and may not reflect all real estate activity in the market. ©2025 The Real Estate Board of New York, Inc., All rights reserved.







