| ID # | RLS20068986 |
| 더 많은 정보 | 건물: The Regency East 침실3, 욕실2, 빌딩: 148 유닛, 빌딩:18 층 DOM: 47 일전 |
| 건축 년도 | 1964년 |
| 관리비 | $2,913 |
| 지하철 | F, Q 까지 도보 5 분 |
| N, W, R 까지 도보 6 분 | |
| 6, 4, 5 까지 도보 7 분 | |
![]() |
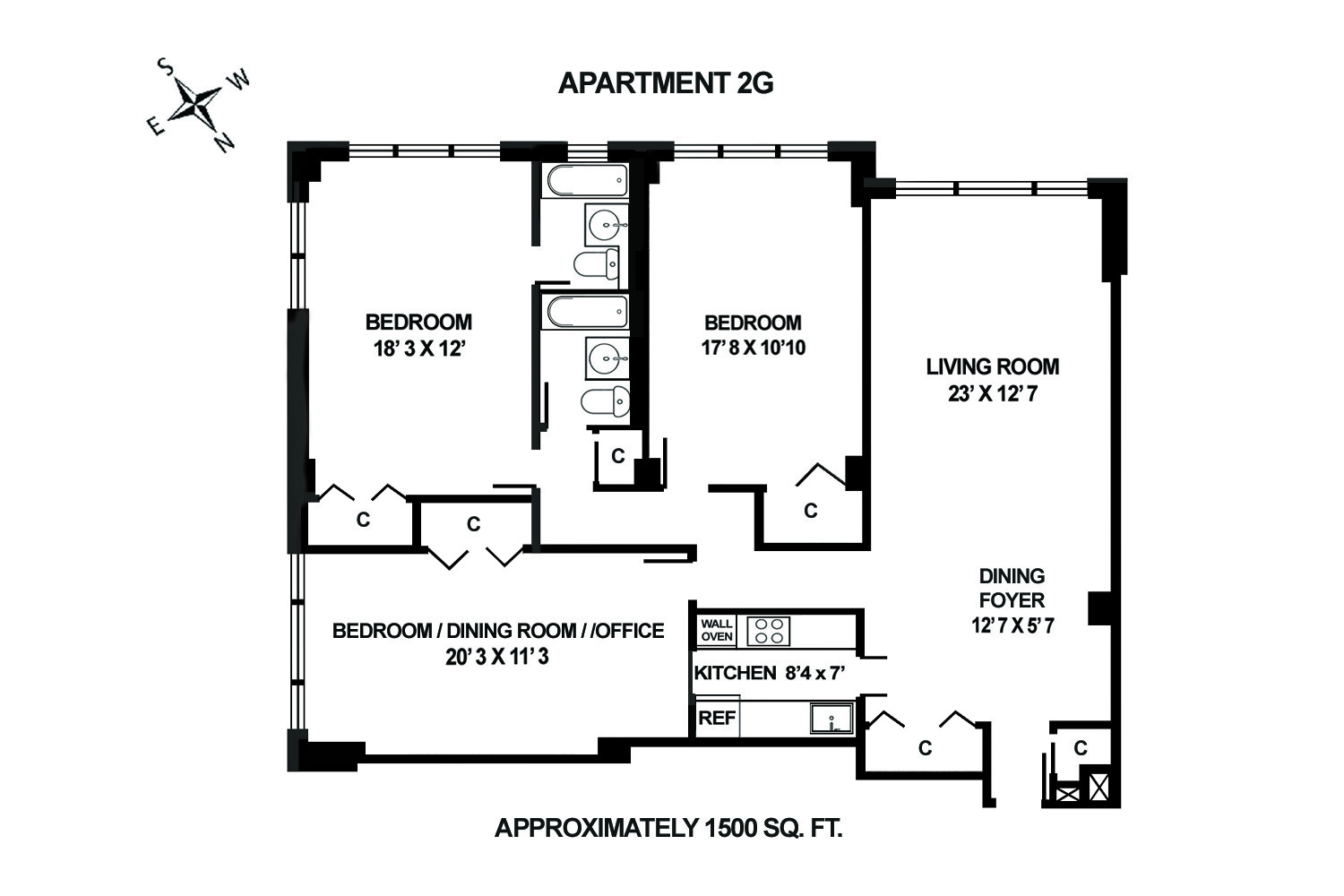
구매자 주목: 이 넓은 남향 코너 5룸 주거 공간은 이사회 승인이 필요 없으며, 쉽게 3베드룸으로 전환 가능합니다. 약 1,500 제곱피트의 면적을 가지고 있으며, 세 번째 침실 / 식당 / 사무실 공간은 20피트로 아주 길습니다. 모든 3개의 침실은 서로 분리되어 있어 평화롭고 고요합니다. 본격적인 원래 상태이며, 계약자와 건축가를 데려와서 이 공간을 완전히 당신만의 것으로 만들어보세요. 관리비는 놀랍게도 제곱피트당 $2입니다. 월별 자본 기여금 $113.05는 1월 1일부터 시작되었습니다.
레젠시 이스트는 1963년에 건설되고 1987년에 전환된 전액 주주 소유, 상시 도어맨, 애완동물 친화적인 협동조합으로, 뛰어난 재정 상태를 자랑하며 전매세가 없습니다. 제공하는 편의 시설로는 Verizon fios와 Spectrum 서비스 제공업체, Sebco 모바일 앱 기반 세탁 서비스, Shred-X 문서 파괴 서비스 등이 있습니다. 세탁기와 건조기는 이사회 승인 후 현재 허용됩니다. 현재 상업 거주자로는 Housing Works, Bright Horizons Day Care, Yuksel Sahin 미용실, H & R Block, 그리고 301 Park Garage가 있습니다. 레젠시 이스트의 인프라는 완전히 업그레이드되었으며(이중 난방 시스템, 교체된 냉각기, 엘리베이터 교체), 2019년에 우아한 복도가 리모델링되었습니다. 법인은 토지와 네 개의 상업 임대 계약 중 세 개를 소유하고 있으며, 보증인 허용, 기부, 피에드 테르 소유권, 순환적 서브리스가 가능합니다. 인근 지역의 주목할 만한 편의 시설로는 Barry's Boot Camp, 5개의 Zipcar 차고, Duane Reade, Health Nuts, Dumbo 마켓이 있으며, 2개의 Equinox 헬스 클럽과 SoulCycle은 3블록 이내에 위치하고 있습니다.
Attention Buyers: NO BOARD APPROVAL for this large, south-facing, corner 5 room residence, easily convertible to a three-bedroom. At approximately 1,500 sq. ft., the third bedroom / dining room / office space is extraordinarily long at 20 ft. All 3 bedrooms are split from each other, providing peace and solitude. Essentially in all-original condition, bring your contractor and architect to make this exactly your own. Maintenance is a remarkable $2/sq. ft. A monthly capital contribution of $113.05 began January 1st.
Regency East is a fully shareholder owned, full-time doorman, pet friendly cooperative, built in 1963 and converted in 1987, with exceptional financials and NO FLIP TAX. Among its amenities: both Verizon fios and Spectrum service providers, Sebco mobile-app based laundry, and Shred-X document destruction. Washers and dryers are now permitted with Board approval. Current commercial residents: Housing Works, Bright Horizons Day Care, Yuksel Sahin Hair Salon, H & R Block, and 301 Park Garage. Regency East's infrastructure has been completely upgraded (dual heating system, replaced chiller, elevator replacement) with elegant hallways renovated in 2019. The Corporation owns the land and three of the four commercial leases, permits guarantors, gifting, pied-a-terre ownership and cyclical subleasing. Notable amenities in the immediate area: Barry's Boot Camp, 5 Zipcar garages, Duane Reade, Health Nuts and Dumbo Markets, with 2 Equinox Health Clubs and SoulCycle no more than 3 blocks away.
This information is not verified for authenticity or accuracy and is not guaranteed and may not reflect all real estate activity in the market. © 2026 The Real Estate Board of New York, Inc., All rights reserved.







